Montáž sádrokartonových příček a dělicích stěn
Příčky a dělicí stěny Rigips jsou nenosné, samonosné, interiérové konstrukce určené k členění interiéru na jednotlivé místnosti. Konstrukce příček Rigips splňují všechny požární, akustické, statické a ostatní požadavky vyplývající z jejich užití v bytových, občanských stavbách a průmyslových stavbách. Uspořádání nosné konstrukce a opláštění (montážní schéma s orientací desek délkou ve směru R-CW profilů) je vhodné pro vertikální nebo šikmou polohu příčky, pokud úhel mezi vodorovnou rovinou a rovinou příčky je větší než 70°.
Příčky standardní, protipožární a akustické – pro běžné dělení prostor včetně požadavků na požární odolnost a zvukovou izolaci mezi místnostmi.
Instalační příčky – pro případy, kdy je třeba v příčkách vést domovní instalace (např. odpady, voda apod.).
Vysoké příčky – příčky na profilech CW 150.
Příčky Rigidur, RigiStabil a Habito H – pro případy, kdy jsou na příčku kladeny požadavky na vyšší mechanickou odolnost a zavěšování břemen.
Obloukové příčky Riflex – pro designové dělení prostor.
Příčky Glasroc H – pro extrémně vlhké prostory a prostory s vysokým rizikem vzniku plísní.
Hlavní konstrukční prvky
Opláštění příčky je provedeno:
- sádrokartonovými deskami Rigips
- sádrovláknitými deskami Rigidur
- kombinací sádrokartonových a sádrovláknitých
desek (příčky Duragips) - sádrovými deskami Glasroc H, Glasroc F Ridurit
nebo Glasroc F Riflex - konstrukčními deskami RigiStabil nebo vysokopevnostními deskami Habito H
Nosná konstrukce příčky je vytvořena z pozinkovaných ocelových profilů R-CW a R-UW, resp. zesílených profilů UA. V případě požadavku je konstrukce v příčkách Glasroc H tvořena profily se zvýšenou antikorozní odolností (HydroProfily).
U příček bez zvláštních požadavků na požární odolnost a vzduchovou neprůzvučnost lze konstrukci příčky provést alternativně z dřevěných hranolů.
Stavební připravenost, vyměření příčky
Před osazením příčky se prověří:
- rovinnost podlahy a stropu
- vývody elektroinstalace (pokud má být v příčce vedena).
Příčku lze osadit na předem provedenou podlahu pouze za předpokladu, že budou učiněna nezbytná opatření k zamezení poškození jejího povrchu, event. šíření hluku.
Podlaha musí být rovněž způsobilá nést hmotnost zamýšlené příčky. Vytyčení příčky se provede pomocí laseru nebo značkovací šňůry. Vytyčuje se úroveň konstrukce a je nutno zohlednit tloušťku opláštění.

Vyměření příčky např. pomocí laseru
Postup montáže standardních příček Rigips
Nosná konstrukce příčky
Rošt z ocelových tenkostěnných pozinkovaných profilů
Rošt příčky je vytvořen z:
- vodorovných profilů R-UW
- svislých stojin – profilů R-CW
Profily R-CW jsou ve stojině opatřeny H-prolisy, které jsou určeny pro protažení elektroinstalace nebo jiných instalačních vedení. Při zkracování profilů R-CW na patřičnou délku je vhodné H-prolisy alespoň na jedné straně délky profilu zachovat.
Montáž obvodových profilů
Obvodové profily příčky (vodorovné profily R-UW a svislé profily R-CW) se opatří před osazením samolepicím napojovacím těsněním Rigips, následně se připevní k návazným konstrukcím pomocí plastových natloukacích hmoždinek, popř. pomocí jiných vhodných připevňovacích prostředků (podle druhu navazujících konstrukcí). Vzájemná rozteč připevnění je max. 800 mm. V rozích příčky je max. vzdálenost prvního připojení od rohu 200 mm.
Předpokládaný průhyb stropní (střešní) konstrukce do 5 mm

Montáž nosné konstrukce příčky – obvodové profily R-UW
Je nutné provést kluzné napojení příčky na strop, např. podle detailu 5.15.20 v článku Vybrané detaily příček.. Profil R-UW je za tímto účelem nutno opatřit náležitým počtem podkladních pruhů sádrokartonu (pro vykrytí mezery mezi sádrokartonovými deskami opláštění a stropní konstrukcí z hlediska požární odolnosti, resp. akustiky).
Při nárocích na požární odolnost musí být přímo exponované napojovací těsnění z materiálu reakce na oheň A1 nebo A2 (např. podlahové pásky Isover N/PP).
Předpokládaný průhyb stropní (střešní) konstrukce 20 až 55 mm

Montáž nosné konstrukce příčky – svislé profily R-CW
V kluzném napojení je nutné namísto standardního profilu R-UW použít profil UW MAX, výška pruhů sádrokartonu musí odpovídat předpokládanému průhybu, připojení k nosnému stropu se provede dvojicí natloukacích hmoždinek umístěných do krajů montážní příruby profilu UW MAX podle detailu 5.15.22 v článku Vybrané detaily příček.
Předpokládaný průhyb stropní (střešní) konstrukce nad 55 mm (halové objekty s velkými rozpony)
Řešeno individuálně po konzultaci s Centrem technické podpory Rigips.
Montáž svislých profilů (stojin)
Mezi vodorovné profily R-UW se osazují svislé profily R-CW (nebo ve stanovených případech profily UA). Délka profilů R-CW se volí tak, aby při opření R-CW profilu o spodní R-UW profil bylo zasunutí horního konce R-CW profilu do horního profilu min. 20 mm. Toto opatření má význam s ohledem na dilatační nezávislost příčky. Minimální vůle R-CW v horním R-UW činí 10 mm.
Rozteč sloupků se volí podle šířky sádrokartonových desek opláštění, maximálně však 625 mm. Výjimku tvoří příčky s opláštěním sádrokartonovými deskami tloušťky 20 a 25 mm orientovanými na ležato v článku Příčky pro speciální účely. Přesná poloha svislých R-CW profilů se upraví až při montáži opláštění.
Profily R-CW se osazují jednotně otevřením ve směru montáže. Jednotlivé R-CW profily zůstávají v R-UW profilech volně nasunuty (standardně se R-UW a R-CW profily vzájemně nespojují). Ve zvláštních případech (např. u zárubně) je nutné R-CW a R-UW profily spojit pomocí prostřihů (hmoždinek) vytvořených perforačními kleštěmi, pomocí šroubů do plechu (typ 421 LB) nebo prostřednictvím ocelových trhacích nýtů.
Otvory pro vedení instalací
Jsou-li R-CW profily opatřeny H-prolisy k vedení instalací, je vhodné při vkládání profilů dbát na umístění H-prolisů přibližně ve stejné výškové úrovni příčky. V případě nutnosti vést dutinou příčky instalace v určité výškové úrovni je možné provádět ve stojinách profilů R-CW, popř. UA otvory přímo na stavbě během montáže.
Pro takto prováděné otvory v profilech R-CW platí následující pravidla:
- Šířka vytvářeného otvoru musí být min. o 10 mm menší než šířka profilu (dutiny příčky).
- Výška otvoru (ve směru délky profilu) nesmí být větší než dvojnásobek jeho šířky.
- Při potřebě více otvorů v jednom profilu nad sebou nesmí být mezera mezi nimi menší než trojnásobek jejich výšky.
- Hrana otvoru musí být od konce profilu vzdálena nejméně o jmenovitou šířku daného profilu.
- Otvory nesmí být provedeny v oblasti vzájemného napojení (prodloužení) profilů.
Pro takto prováděné otvory v UA profilech platí následující pravidla:
- Šířku vytvářeného otvoru vymezují podélné prostřihy.
- Výška otvoru (ve směru délky profilu) je max. oblast dvou prostřihů.
- Při potřebě více otvorů nad sebou nesmí být mezera mezi nimi menší než oblast tří prostřihů.
- Hrana otvoru musí být od konce profilu vzdálena nejméně o oblast dvou prostřihů.
- Otvory nesmí být provedeny v oblasti vzájemného napojení (prodloužení) profilů.
Nastavování profilů
V příčkách vyšších, než je standardní délka profilů R-CW, je možno R-CW profily nastavovat vzájemně na délku.
Napojení se provádí pomocí:
- Příložky z profilu R-UW délky min. 1 000 mm nasunuté otevřenou stranou na stojiny nastavovaných R-CW profilů. Délka příložky se rovnoměrně rozdělí na obě strany styku (obr. A)
- Příložky z profilu R-CW délky min. 1 000 mm nasunuté otevřenou stranou vstřícně do nastavovaných R-CW profilů. Délka příložky se rovnoměrně rozdělí na obě strany styku (obr. B).
- Profilu R-CW zasunutého vstřícně do nastavovaného profilu s přesahem nejméně 500 mm (obr. C). Na koncích přesahů a uprostřed jejich délky se profily vzájemně spojí nýty, šrouby do plechu nebo pomocí perforačních kleští.
Napojení profilů UA se provádí pomocí příložky z profilu UA délky min. 1 000 mm. Délka příložky se rovnoměrně rozdělí na obě strany styku a přišroubuje na spojované části UA profilů stojinami k sobě pomocí 4 kusů šroubů M8 s matkou a podložkou (obr. D) nebo pomocí 8 kusů samovrtných šroubů LB 4,2 x 13 mm (obr. E). Napojení na sousedících stojinách nesmí být ve stejné výši. Je nutno je vzájemně výškově vystřídat minimálně o 2 metry. Napojení je vhodné orientovat blíže k hornímu nebo spodnímu okraji příčky.
Příčky lze montovat i na zdvojenou nosnou konstrukci.
Profily obou roštů zdvojené konstrukce mohou být sesazeny k sobě. Přilehlé příruby profilů je pak nutné vzájemně vymezit napojovacím těsněním Rigips (postačí terče 50 x 100 mm v odstupech cca 500 mm). Rošty zdvojené konstrukce mohou být i odsazené, vzájemně nezávislé. V takovém případě je redukována dovolená výška konstrukce – viz Velká kniha sádrokartonu.
Profily zdvojené konstrukce instalačních příček jsou ve třetině výšky vzájemně spřaženy pruhy sádrokartonových desek – více v článku Příčky pro speciální účely.
Rošt ze dřeva
Konstrukci příčky je možno sestavit namísto systémových kovových profilů také ze dřeva.
Rošt je vytvořen z vodorovných dřevěných profilů (spodní a vrchní vodorovný vodicí profil) a svislých dřevěných sloupků. Elektroinstalační rozvody uvnitř stěny jsou vedeny otvory vrtanými do osy sloupků. Na vodorovný dřevěný profil se před jeho připevněním k podlaze a stropu nalepí samolepicí napojovací těsnění. Vzájemné napojení vodorovných a svislých dřevěných profilů se provádí hřebíkovým spojem nebo „volným“ sčepováním.
Vložené konstrukce
Podle potřeby a požadavků se zabudují do roštu stěny montážní desky nebo speciální nosné stojany k přenesení sil od předpokládaných břemen (umyvadlo, záchodová mísa, pisoárová stání, bidet, školní tabule, regály, kuchyňské linky apod.). Je nutno je pevně spojit se svislými profily příčky.
Podrobné informace jsou uvedeny v článku Upevňování předmětů na konstrukce Rigips.
Opláštění
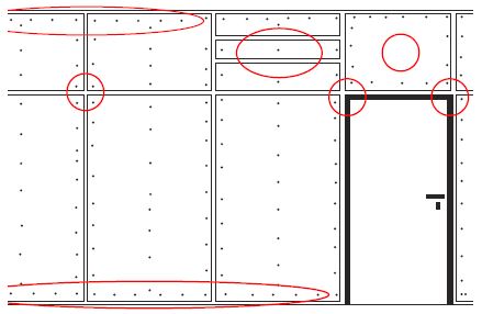
Standardní orientace sádrokartonových desek na příčce je svislá, tj. délkou desek ve směru svislých profilů. K opláštění se používají pokud možno celé desky. Využití zbytků sádrokartonových desek je přípustné za podmínky, že výška zbytku je min. 400 mm a nejsou použity dva a více zbytků v těsném sousedství nad sebou. Délka sádrokartonových desek se volí taková, aby pokud možno pokryla celou výšku příčky, avšak není vyloučeno použití sádrokartonové desky menších formátů (např. 1 250 x 2 000 mm). Přesahuje-li výška příčky délku sádrokartonové desky, lze opláštění nastavit doplňkem z dalších sádrokartonových desek. Přitom je nutné zajistit, aby byly příčné (vodorovné) spáry v sousedních polích vzájemně vystřídány alespoň o 400 mm a nedocházelo tak k vytváření křížových spár. Sádrokartonové desky se montují na těsný sraz s maximální mezerou mezi deskami 10 mm.
U podlahy je vhodné ponechat cca 10 mm širokou spáru, která se posléze vyplní spárovacím tmelem. Opláštění kolem otvorů (okna, dveře) se provede podle schématu níže.
Pozor! Při vícenásobném opláštění příčky v prostorách s vyšší vzdušnou vlhkostí se použijí ve všech vrstvách opláštění impregnované sádrokartonové desky. Druh opláštění požárně odolných konstrukcí se volí podle požadované požární odolnosti – viz Katalog požárně odolných konstrukcí suché výstavby nebo Technické listy.

Typické příklady chyb při opláštění
Opláštění první strany příčky se začíná u navazující stěny sádrokartonovou deskou plné šířky.
TIP: Před našroubováním sádrokartonové desky je možno odstranit její podélnou hranu (odříznutím hrany PRO), čímž se usnadní finalizace povrchu u návaznosti na sousední stěnu.
Sádrokartonové desky se na svislé profily přišroubují rychlošrouby Rigips 212 (TN) předepsané délky, desky Habito H se připevňují šrouby typu UMN a desky RigiStabil a MA (DF), MAI (DFH2) šrouby typu TUN.
Pozor! Sádrokartonové desky opláštění příček se šroubují výhradně ke svislým R-CW profilům, ne k vodorovným R-UW profilům.
Při vícenásobném opláštění se podkladní plášť vždy vytmelí v jednom kroku libovolným sádrovým spárovacím tmelem Rigips bez výztužné pásky. Následné opláštění se provádí až po ztvrdnutí tmelu na podkladním opláštění. Pro dosažení potřebného vystřídání svislých spár se druhá vrstva začíná sádrokartonovou deskou poloviční šířky. Vodorovné spáry první a druhé vrstvy opláštění se přesadí min. o 10 mm. Spáry finálního povrchu se tmelí až po kompletním opláštění celé příčky z obou stran.
Po opláštění první strany příčky se vloží minerální izolace.
Opláštění druhé strany příčky se začíná sádrokartonovou deskou poloviční šířky tak, aby spára této sádrokartonové desky ležela na R-CW profilu v úrovni střednice první sádrokartonové desky opláštění z opačné strany příčky.
Tmelí se opět každá vrstva opláštění libovolným sádrovým spárovacím tmelem Rigips.
Hlavy šroubů se tmelí pouze na finálním povrchu opláštění. Spáry finálního povrchu se tmelí až po kompletním opláštění celé příčky z obou stran.
Způsob tmelení je popsán v samostatném článku Jak postupovat při tmelení a jaké jsou stupně kvality tmelení najdete v článku Tmelení sádrokartonových konstrukcí.

Montáž opláštění – druhá strana příčky
Minerální izolace
Izolace z minerálních vláken se do dutiny příčky vloží po opláštění první strany příčky a po uložení požadované elektroinstalace (resp. instalace zdravotní techniky apod.). Minerální izolaci lze volit buď v rolích (např. skelná izolace Isover Piano), nebo v deskách (např. čedičová izolace Isover Orset). Počet vrstev, tloušťka, objemová hmotnost, resp. typ minerální izolace musí být v souladu s předepsanými požadavky na požární odolnost a vzduchovou neprůzvučnost – viz Technické listy konstrukcí na www.rigips.cz.
Meziprostor se izoluje v celé ploše bez mezer. Pokud izolační materiál nevyplní alespoň cca 3/4 šířky profilu nebo nevykazuje v dutině dostatečnou tvarovou stálost a stabilitu, je nutné jej proti sesunutí zabezpečit. Fixace se provádí 1x při horním okraji v každém poli příčky, každý fixační bod může držet max. 3 m vysoký pás minerální izolace.

Vložení minerální izolace do dutiny příčky
Montáž zárubní
Při zabudování do příčky Rigips je třeba použít zárubeň určenou pro montáž do sádrokartonových příček. Pro uspořádání příčky v oblasti zárubní je rozhodující světlá výška místnosti, světlá šířka zárubně a hmotnost dveřního křídla.
Montáž systémové ocelové zárubně do konstrukce příčky
Výška místnosti H ≤ 2 600 mm, světlá šířka zárubně ≤ 850 mm, hmotnost dveří ≤ 25 kg
Použijí se běžné příčkové profily (R-CW a R-UW) o tloušťce plechu 0,6 mm. Podlahový profil R-UW je v místě dveřního otvoru přerušen. Na obou stranách zárubně musí být profil R-UW ukotven k podlaze dvěma připevňovacími prostředky.
Profily R-CW přiléhající k zárubni se spojí s podlahovým i stropním R-UW profilem pomocí dvojic prostřihů, nýtů nebo samořezných šroubů typu 421 LB.
Nad dveřním otvorem se zabuduje překlad (výměna) z profilu R-UW. Do nadpraží zárubně se umístí dvě zkrácené stojiny R-CW pro vynesení spár opláštění v nadpraží zárubně. Zárubňové profily R-CW a překlad zárubně (profil R-UW) se spojí s vloženou zárubní pomocí šroubů do plechu min. Ø 3,9 mm (např. typ 421 LB Ø 4,2 x 13 mm) zašroubovaných do zárubňových příponek (2 šrouby na jednu příponku).
Pozor!
Je-li v příčce použita minerální izolace, je z důvodu zachování neprůzvučnosti nutné vyplnit minerální izolací rovněž dutinu mezi zárubní a profily.
Výška místnosti H ≤ 2 800 mm, světlá šířka zárubně ≤ 850 mm, hmotnost dveří ≤ 25 kg
Použijí se běžné příčkové profily (R-CW a R-UW) o tloušťce plechu 0,6 mm. Podlahový profil R-UW je v místě dveřního otvoru přerušen. Na obou stranách zárubně musí být profil R-UW ukotven k podlaze dvěma připevňovacími prostředky.
Profily R-CW přiléhající k zárubni se spojí s podlahovým i stropním R-UW profilem pomocí dvojic prostřihů, nýtů nebo samořezných šroubů typu 421 LB. Tyto svislé profily se po celé délce vyztuží profilem R-UW, který je nasunutý z vnější strany (tzv. skříňový nosník – viz obrázek). Nad dveřním otvorem se zabuduje překlad (výměna) z profilu R-UW.
Do nadpraží zárubně se umístí dvě zkrácené stojiny R-CW pro vynesení spár opláštění v nadpraží zárubně. Profily R-CW a překlad zárubně (profil R-UW) se spojí s vloženou zárubní pomocí šroubů do plechu min. Ø 3,9 mm (např. typ 421 LB Ø 4,2 x 13 mm) zašroubovaných do zárubňových příponek (2 šrouby na jednu příponku).
Po připevnění zárubně k profilům R-CW se pomocí nasunutých profilů R-UW vytvoří tzv. skříňové nosníky.
Pozor! Je-li v příčce použita minerální izolace, je z důvodu zachování neprůzvučnosti nutné vyplnit minerální izolací rovněž dutinu mezi zárubní a profily. Před zaklopením je rovněž nutné vyplnit dutiny skříňových nosníků (R-UW+R-CW).
Výška místnosti > 2 800 mm, světlá šířka zárubně > 850 mm nebo hmotnost dveří > 25 kg
K upevnění zárubně se provede konstrukce z výztužných profilů UA (tloušťka plechu 2 mm) připojených pomocí suvných nebo šroubovacích úhelníků. Přitom hmotnost dveřního křídla je limitována:
- max 50 kg při použití profilu UA 50
- max 75 kg při použití profilu UA 75
- max 100 kg při použití profilu UA 100
Varianta s použitím suvných úhelníků
K ukotvení profilů UA ke stropu a podlaze se použijí úhelníky suvné, které jsou do UA profilů pouze nasunuty,
k podlaze a ke stropu jsou připojeny jen pozičním kotvením (plastové natloukací hmoždinky Ø 8 mm, které jsou příslušenstvím suvných úhelníků). V tomto případě není nutno přerušit stropní R-UW profil a patky se na podlaze i stropě vkládají do R-UW profilu.
Varianta s použitím připojovacích úhelníků šroubovaných
K ukotvení profilů UA ke stropu a podlaze se použijí úhelníky šroubované. Tyto úhelníky musí být ke stropu a podlaze připevněny nosným kotvením (kovová hmoždinka Ø 8 mm; 2 ks/1 patka). V místech kotvení je nutno přerušit stropní profil R-UW, úhelníky se na podlaze i stropě montují přímo do nosné konstrukce. Připojovací úhelníky jsou s profily UA spojeny sešroubováním pomocí dvojic šroubů M8 s matkou.
Zabudování dřevěných (obložkových) zárubní do konstrukce příčky
Platí rozhodující parametry:
- výška místnosti do 2 800 mm
- světlá šířka zárubně do 850 mm
- hmotnost dveří do 25 kg
Jsou-li všechny podmínky splněny, použijí se pro montáž příčky v ostění dveřního otvoru svislé profily R-CW a R-UW. Je-li některá z podmínek překročena, použijí se pro montáž příčky v ostění dveřního otvoru profily UA. Profily jsou vzájemně spojeny a uspořádány obdobně jako při užití systémových ocelových zárubní. Obložkové zárubně jsou montovány po opláštění a vytmelení příčky. Do stěny jsou kotveny pomocí montážní pěny.
Montáž opláštění v místě zárubně
Svislé spáry mezi sádrokartonovými deskami se umístí vždy nad dveřním otvorem ve vzdálenosti alespoň 150 mm od bočního ostění zárubně. Není přípustné, aby spára vybíhala přímo z horního rohu zárubně. Svislé spáry sousedních sádrokartonových desek jsou připevněny ke dvěma zkráceným R-CW profilům, umístěným v nadpraží zárubně. Případné horizontální spáry musí být rovněž vzdáleny min. o 150 mm od horního rohu zárubně.
Opláštění příčky je nutno zasunout do profilu zárubně min. 10 mm.

Potřebujete vědět víc? Připravili jsme pro vás článek O příčkách pro speciální účely nebo si prostudujte Detaily příček a dělicích stěn.









